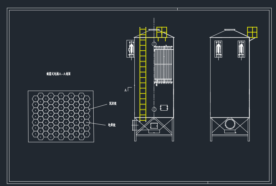
3万风量蜂窝式电捕焦油器

搜索:

产品中心 行业动态
产品系列

3万风量蜂窝式电捕焦油器

3万风量蜂窝式电捕焦油器

慧阳环保公司专 业处理焦油煤气,承揽各行业用环保设备设计、制作、安装、维修改造电捕焦油器,立式电捕焦油器(包括蜂窝式、板式、管式、同心圆式),卧式电捕焦油器,干式电捕焦油器,湿式电捕焦油器等,性能稳定,寿命长,效率 高,运行稳定,包验收环保达标。

返回列表